买琴买鼓,就找魔菇!

 找回密码
 注册
搜索
查看: 1375|回复: 2

如何布场子,不知道选调音台还是多块音箱,有现场经验...

[复制链接]
发表于 2015-5-11 18:49:39 来自手机 | 显示全部楼层 |阅读模式
吉他中国微信公众号
本帖最后由 wangchao0018 于 2015-5-11 20:04 编辑

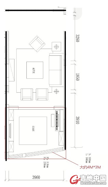
家里有一个块儿空地,客厅比较大。
兄弟我就想了:这TM不搞音乐浪费了,总不能放着欣赏风景啊!加上老婆也会乐器,以后再培养小孩学习,标准家庭参与哈。

但是问题来了,楼上楼下比较吵,架子鼓肯定放不了,所以只能电鼓。
目前已经有的乐器是电箱吉他、电吉他、电钢琴。后期准备加:人声MIC;
电鼓、贝斯、再加吉他等等。。

之前的吉他音箱太吵,考虑到邻居关系肯定要把声音控制一下。又要玩的开心,还要录音。
所以目前两种选择:
1、都连音箱,多个输出
2、连调音台

空间图见二楼如下,休闲阳台空间和客厅连在一起的(左下角那一块)。
大哥们帮忙小弟指点指点!


舞台位置如上

舞台位置如上
 楼主| 发表于 2015-5-11 18:51:23 来自手机 | 显示全部楼层
吉他中国抖音
不会粘图。。等下马上补上!
发表于 2015-5-11 19:28:01 | 显示全部楼层
GC视频号
来秀大房子的~~~~~~~~~~~
您需要登录后才可以回帖 登录 | 注册

本版积分规则

Archiver|手机版|小黑屋|吉他中国官方

GMT+8, 2025-12-27 06:09

Powered by Discuz!

© 2001-2024 Discuz! Team.

快速回复 返回顶部 返回列表